Alquiler y Venta de Casas y Departamentos en Punta del Este
Inmobiliaria de Punta del Este Publique su propiedad aquí

Tels. (+598) 4248-7303 y (+598) 4248-0806

Edificio The Point Brava en Parada 7 Playa Brava en Aidy Grill Volver Recomendar


Ver The Point Brava en un mapa m?s grande" frameborder="0" allowfullscreen>

Consultar sobre esta propiedad

Descripción

The Point Brava, Se ubica a solo 150 mts de Playa Brava (Parada 7), 6 cuadras del Hotel Conrad y 7 del Punta Shopping.

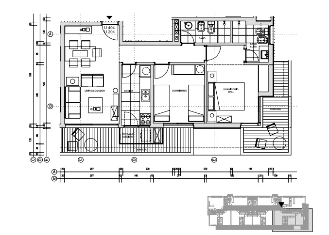
Es un Edificio de cuatro plantas,con un total de 32 unidades, departamentos de uno, dos dormitorios y mono ambientes loft.

Se trata de un emprendimiento de dimensiones moderadas y muy buena calidad-

Hall de acceso y recepción, dos ascensores de última generación con llegada directa a terraza superior, espacios disfrutables al aire libre con piscina e hidromasaje.


Año de construcción 2011

Servicios

Piscina abierta
Hidromasaje
Zona de Barbacoas en terraza superior
Ocho Unidades con zona de babracoas e hidromasaje privadas en terraza superior con vista al Océano e Isla de Lobos.
Seguridad las 24 hs.
Recepcion

Mapa

Unidades en Venta

Foto Descripción Dormitorios Baños Precio U$S
 5 fotos
Departamento Código P720
Del primero al cuarto piso y con ubicaci?n contra frente se ubican estas unidades esquineras, Departamentos mono ambientes poseen kitchenete, ba?o y un total de 33 mts2. + info
1 Ambiente 1 Consultar Precio
 7 fotos
Departamento Código P721
Departamentos de dos dormitorios con ubicacion esquinera. Doble terraza, living comedor, dos ba?os completos, suite, cocina definida con lavadero. 62mts interiores y 19 metros2 de terraza. + info
2 Dormitorios 2 Consultar Precio