OTTO UNO en Parada 20 en Roosevelt
Volver
Recomendar
Descripción
Edificio Otto Uno se localiza en la parada 20 de Avenida Roosevelt, a tres minutos de la Playa Mansa, ocho de la Playa Brava, próximo a los principales centros de salud privada y de
estudios universitarios, terminal de ómnibus, clubes deportivos y todos los servicios necesarios para una vida confortable y tranquila.
Se encuentra en etapa de pre venta con precios muy competitivos y previendoun costo de mantenimiento mensual lo más bajo posible.
Enfocado en quienes buscan vivienda permanente o renta este proyecto tendrá los beneficios de la Ley 18795 que otorga importantes exoneraciones impositivas: Impuesto a las Transmisiones Patrimoniales, Impuesto al Patrimonio, IVA, e Impuesto a la renta por 10 años.
El diseño contempla la optimización al máximo de los espacios y la luminosidad para lo cual las unidades tendrán amplios ventanales. Las plantas de 2 y 3 dormitorios contarán con grandes balcones, algunos de ellos con parrilleros de uso exclusivo.
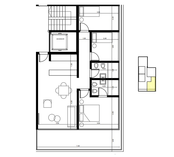
Contara con planta baja, 6 pisos y azotea de uso común. Un total de 36 unidades se distribuirán en cada piso de la siguiente forma:
1 unidad de 3 dormitorios
3 unidades de 2 dormitorios
2 unidades de 1 dormitorios
Las unidades se entregarán con horno, anafe, campana, pre instalación de aire acondicionado en living comedor y dormitorios, pre instalación para lava-secarropas y placares en dormitorios. Se contemplan cocheras para todas las unidades (no incluidas en el precio). Construcción sólida y tradicional, mesadas de granito de primera calidad, cerramientos de aluminio con doble vidrio (DVH), barandas de vidrio estructural, etc.
Servicios
Salón de usos múltiples con parrillero
Gimnasio
Lugar de esparcimiento en la azotea.
Mapa
Unidades en Venta
| Foto | Descripción | Dormitorios | Baños | Precio U$S |
|---|---|---|---|---|
|
|
|
3 Dormitorios | 2 | Consultar Precio |
|
|
|
1 Dormitorio | 1 | Consultar Precio |
|
|
|
2 Dormitorios | 1 | Consultar Precio |





